Objektart
Adresse
Objektdaten
Informationen
Ausstattung
Details
Diese gut geschnittene 3-Zimmer-Dachgeschosswohnung befindet sich in einem gepflegten Mehrfamilienhaus in solider Massivbauweise aus dem Jahr 1969. Die Wohnanlage umfasst insgesamt 36 Wohneinheiten und überzeugt durch ihre ruhige sowie zugleich zentrale Lage.
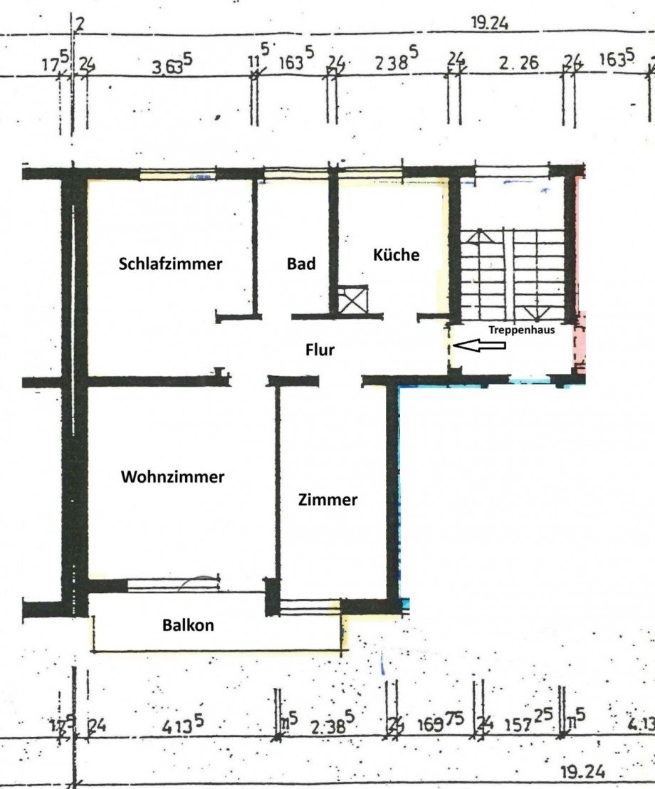
Die Wohnung liegt im 3. Obergeschoss und bietet auf ca. 68 m² Wohnfläche eine durchdachte Raumaufteilung. Sämtliche Zimmer sind bequem vom Flur aus separat begehbar, was eine optimale Nutzung sowohl für Eigennutzer als auch für Kapitalanleger ermöglicht.
Das helle Wohnzimmer mit Zugang zum Südwestbalkon lädt zum Entspannen ein und bietet angenehme Sonnenstunden bis in die Abendstunden. Das Tageslichtbad ist mit einer Badewanne ausgestattet.
Die Küche verfügt über eine Einbauküche, die bei Bedarf übernommen werden kann.
Im Jahr ca. 2011 wurden die Kunststofffenster erneuert und mit 3-fach-Verglasung sowie Rollläden ausgestattet.
Die Bodenbeläge bestehen aus Fliesen und Laminat und unterstreichen den gepflegten Gesamteindruck der Wohnung.
Ein eigener Kellerraum mit ca. 10 m² bietet zusätzlichen Stauraum. Darüber hinaus stehen den Bewohnern ein gemeinschaftlicher Trockenraum sowie ein Fahrradkeller zur Verfügung.
Die Beheizung sowie die Warmwasserversorgung erfolgen über Fernwärme.
Das monatliche Hausgeld beträgt ca. 220 EUR, davon entfallen rund 68 EUR auf die Rücklagenbildung. Die Kosten für Heizung und Warmwasser werden verbrauchsabhängig abgerechnet. Die Wohnanlage wird durch eine externe Hausverwaltung professionell betreut.
Die Wohnung ist kurzfristig verfügbar - eine attraktive Gelegenheit sowohl für Selbstnutzer als auch für Kapitalanleger.
Haben wir Ihr Interesse geweckt?
Dann freuen wir uns auf Ihre Nachricht!
Auf Wunsch erstellen wir Ihnen gerne ein maßgeschneidertes Finanzierungsangebot über unseren langjährigen Finanzierungspartner. Selbstverständlich unterstützen wir Sie auch beim Verkauf Ihrer bestehenden Immobilie.
+ 3-Zimmer-Wohnung
+ ca. 66 m² Wohnfläche
+ 3. Obergeschoss (Dachgeschoss)
+ Sonniger Südwestbalkon
+ Einbauküche übernehmbar
+ Helles Tageslichtbad mit Badewanne
+ Heizung und Warmwasser über Fernwärme
+ Praktischer Kellerraum (ca. 10 m²)
+ Ruhige und zentrale Lage
+ Kurzfristig bezugsfrei
+ und vieles mehr...
Die Immobilie befindet sich im Stadtteil Lebenstedt in Salzgitter und überzeugt durch eine ruhige, zugleich zentrale Wohnlage mit sehr guter Infrastruktur.
Einkaufsmöglichkeiten für den täglichen Bedarf, Ärzte, Apotheken sowie Schulen und Kindergärten sind in wenigen Minuten erreichbar. Das nahegelegene CityCarree Salzgitter bietet darüber hinaus eine Vielzahl an Geschäften und Dienstleistungen.
Die Anbindung an den öffentlichen Nahverkehr ist gut ausgebaut. Zudem besteht eine schnelle Verbindung zu den umliegenden Städten, insbesondere nach Braunschweig und Hannover.
Zahlreiche Grünflächen und Naherholungsmöglichkeiten in der Umgebung laden zu Spaziergängen und Freizeitaktivitäten im Freien ein und unterstreichen die hohe Wohnqualität dieses Standorts.
Wichtige Hinweise zur Exposé- und Besichtigungsanfrage
1. Kontaktformular ausfüllen
Bitte vollständigen Namen, Anschrift und Telefonnummer angeben - erforderlich zur Identitätsprüfung (§ 2 Abs. 10 GwG). Ohne diese Angaben können wir nicht starten.
2. Zustimmung per E-Mail
Nach Ihrer Anfrage erhalten Sie eine E-Mail. Über den Bestätigungslink akzeptieren Sie unsere Nutzungsbedingungen und bestätigen die Widerrufsbelehrung (Fernabsatzrecht).
3. Exposé öffnen
Nach der Bestätigung können Sie das vollständige Exposé direkt über den Link öffnen bzw. herunterladen. Gern vereinbaren wir anschließend einen Besichtigungstermin.
Vielen Dank für Ihr Verständnis! Bei Fragen sind wir jederzeit für Sie da.
Cakir Immobilien GmbH
Ansprechpartner
Mobil: +49 177 3410912
hy@cakir-immobilien.de
Ich bin damit einverstanden, dass mir Karten von Google angezeigt werden. Es gelten die Datenschutzbedingungen von Google (https://policies.google.com/privacy).
Ich bin einverstanden