Objektart
Adresse
Objektdaten
Informationen
Ausstattung
Details
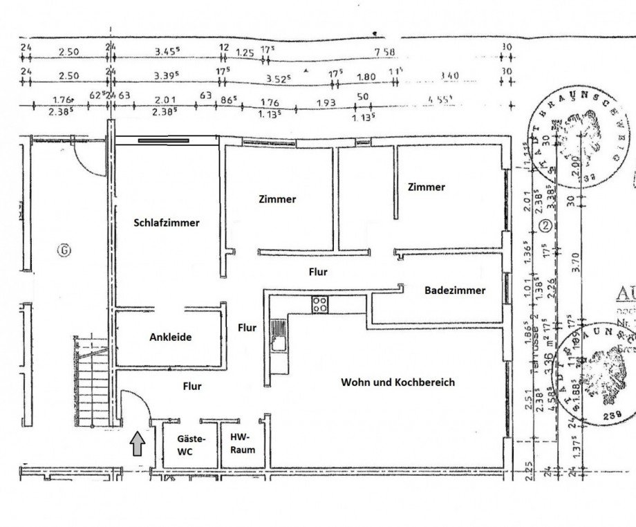
Willkommen in Ihrem neuen Zuhause: Diese hochwertige, barrierefreie Erdgeschosswohnung befindet sich in einem massiv gebauten 8-Parteien-Haus aus dem Baujahr 2023 und bietet auf ca. 130 m² Wohnfläche modernen Wohnkomfort auf einer Ebene. Dank des ebenerdigen Zugangs eignet sich die Immobilie ideal für Familien, Paare, Senior:innen sowie Menschen mit eingeschränkter Mobilität.
Herzstück der Wohnung ist der großzügige Wohn- und Essbereich mit offener Wohnküche. Die moderne, L-förmige Einbauküche mit Frühstücksbar bietet viel Platz zum Kochen, Genießen und Verweilen. Von hier aus gelangen Sie direkt auf die sonnige Süd-Terrasse, die mit ihrem zweiten, barrierefreien Zugang zusätzlichen Komfort schafft und als erweiterter Wohnraum im Freien genutzt werden kann.
Die Ausstattung überzeugt durch zeitlose Materialien und moderne Technik: geflieste Böden, 3-fach verglaste Kunststofffenster, elektrische Außenrollläden sowie eine angenehme Fußbodenheizung sorgen für ein komfortables Wohnambiente.
Das Schlafzimmer verfügt über eine praktische Ankleide und bietet zusätzlichen Stauraum. Das großzügige Tageslichtbad ist mit Badewanne, separater Dusche sowie Doppelwaschbecken ausgestattet. Ein separates Gäste-WC mit eigener Dusche ergänzt das durchdachte Raumangebot ideal.
Zusätzlichen Komfort bieten der Hauswirtschaftsraum mit Waschmaschinenanschluss, ein separater Kellerraum mit ca. 8 m² Nutzfläche sowie ein PKW-Außenstellplatz mit Vorbereitung für eine Wallbox beziehungsweise Ladestation.
Auch energetisch ist die Wohnung bestens aufgestellt: Eine moderne Luft-Wärmepumpe, die gedämmte Fassade mit Wärmedämmverbundsystem sowie die Energieeffizienzklasse A+ sorgen für niedrige Heiz- und Energiekosten. Ein Glasfaseranschluss sowie eine moderne Gegensprechanlage mit Kamera runden dieses attraktive Angebot ab.
Die Wohnung ist ab sofort bezugsfertig und bietet Ihnen die seltene Gelegenheit zum Erstbezug in einem modernen, energieeffizienten Neubau.
Fazit
Sofort einziehen und wohlfühlen - diese stilvolle Erdgeschosswohnung vereint barrierefreies Wohnen, hochwertige Ausstattung und zukunftssichere Energieeffizienz in attraktiver Lage.
Interesse?
Wir freuen uns auf Ihre Kontaktaufnahme. Gerne erstellen wir Ihnen auf Wunsch ein maßgeschneidertes Finanzierungsangebot und unterstützen Sie beim Verkauf Ihrer Bestandsimmobilie.
+ Energieeffizienzklasse A+ dank moderner Luft-Wärmepumpe
+ Fußbodenheizung für ein angenehmes Raumklima
+ 3-fach verglaste Kunststofffenster für optimalen Wärme- und Schallschutz
+ Elektrische Außenrollläden für mehr Komfort und Sicherheit
+ Großzügige Terrasse mit Außenzugang (Südausrichtung)
+ Gäste-WC mit Dusche für zusätzlichen Komfort
+ Großes Badezimmer mit Wanne und separater Dusche
+ Fassade mit Wärmeverbundsystem zur optimalen Isolierung
+ PKW-Außenstellplatz mit Vorbereitung für Wallbox/Ladestation
+ Separater Kellerraum für zusätzlichen Stauraum
+ Glasfaseranschluss für schnelles Internet
+ Moderne Gegensprechanlage mit Kamera für mehr Sicherheit
+ Abstell-/Hauswirtschaftsraum
+ Kellerraum ca. 8 m²
+ Erstbezug
+ und vieles mehr...
Die Wohnung befindet sich in einem gewachsenen und beliebten Wohngebiet im westlichen Stadtbereich von Braunschweig. Die Umgebung zeichnet sich durch eine angenehme Mischung aus ruhigem Wohnen, guter Infrastruktur und kurzen Wegen in die Innenstadt aus.
Einkaufsmöglichkeiten für den täglichen Bedarf, Supermärkte, Bäckereien, Apotheken sowie Ärzte befinden sich in der näheren Umgebung und sind schnell erreichbar. Familien profitieren von einem guten Angebot an Kindergärten, Schulen und Freizeiteinrichtungen im Umfeld.
Die Anbindung an den öffentlichen Nahverkehr ist sehr gut. Mehrere Bus- und Straßenbahnverbindungen ermöglichen eine schnelle Erreichbarkeit der Braunschweiger Innenstadt, des Hauptbahnhofs sowie weiterer Stadtteile. Auch mit dem Auto sind die wichtigsten Verkehrsachsen und Autobahnanschlüsse in kurzer Zeit erreichbar.
Naherholungsmöglichkeiten, Grünflächen und Spazierwege sorgen für einen hohen Freizeitwert und bieten ideale Voraussetzungen für Erholung im Alltag. Sportvereine, Fitnessangebote sowie gastronomische Einrichtungen ergänzen die attraktive Wohnlage.
Insgesamt bietet dieser Standort eine gelungene Kombination aus ruhigem Wohnen, urbaner Nähe und hervorragender Erreichbarkeit - ideal für Familien, Paare, Berufstätige und Senior:innen.
Wichtige Hinweise zur Exposé- und Besichtigungsanfrage
1. Kontaktformular ausfüllen
Bitte vollständigen Namen, Anschrift und Telefonnummer angeben - erforderlich zur Identitätsprüfung (§ 2 Abs. 10 GwG). Ohne diese Angaben können wir nicht starten.
2. Zustimmung per E-Mail
Nach Ihrer Anfrage erhalten Sie eine E-Mail. Über den Bestätigungslink akzeptieren Sie unsere Nutzungsbedingungen und bestätigen die Widerrufsbelehrung (Fernabsatzrecht).
3. Exposé öffnen
Nach der Bestätigung können Sie das vollständige Exposé direkt über den Link öffnen bzw. herunterladen. Gern vereinbaren wir anschließend einen Besichtigungstermin.
Vielen Dank für Ihr Verständnis! Bei Fragen sind wir jederzeit für Sie da.
Cakir Immobilien GmbH
Ansprechpartner
Mobil: +49 177 3410912
hy@cakir-immobilien.de
Energieausweis (Bedarfsausweis)
17,30 kWh / (m²*a) Endenergiebedarf
17,30 kWh / (m²*a) Endenergiebedarf
17,30 kWh / (m²*a) Endenergiebedarf
17,30 kWh / (m²*a) Endenergiebedarf
17,30 kWh / (m²*a) Endenergiebedarf Weitere Informationen
| Wesentlicher Energieträger | Keine Angabe |
| Energieausweis Ausstelldatum | 2022-12-21 |
| Energieausweis gültig bis | 20.12.2032 |
| Energieausweis Jahrgang | ab dem 1.5.2014 |
| Energieverbrauch für Warmwasser | enthalten |
| Energieausweis Werteklasse | A+ |
| Energieausweis Baujahr | 2023 |
| Energieausweis Gebäudeart | Wohngebäude |
Ich bin damit einverstanden, dass mir Karten von Google angezeigt werden. Es gelten die Datenschutzbedingungen von Google (https://policies.google.com/privacy).
Ich bin einverstanden